Refine Search

2410 E 20th Avenue, Tampa, FL 33605

$395,000
  • 2410 E 20th Avenue, Tampa, FL 33605 Main Photo

7 Total Photos [Click to View All]

Active
BEDS3 BATHS2 full SQUARE FEET1,355 MLS#TB8448595
STATUSActive PROPERTY TYPEResidential - Single Family SUBDIVISIONMAYS

Property Description

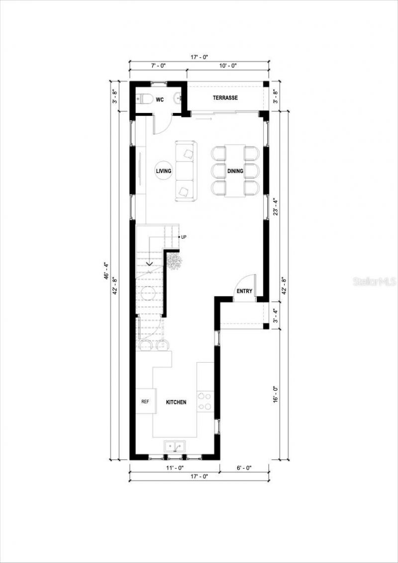
Under Construction. Welcome to your brand-new dream home in the heart of Central Tampa! Currently under construction, this stunning 3-bedroom, 2.5-bathroom single-family residence blends high-end design with modern functionality-perfect for homeowners seeking comfort, convenience, and style. Step inside to a beautiful open-concept floor plan that seamlessly connects the living, dining, and kitchen areas, creating an airy and inviting atmosphere ideal for both everyday living and entertaining. The home features designer-selected finishes throughout, including premium flooring, elegant fixtures, and thoughtfully curated details that elevate every room. The kitchen will showcase sleek cabinetry, quartz countertops, and top-quality materials, making it a true centerpiece of the home. Large windows bring in abundant natural light, highlighting the craftsmanship and quality at every turn. Upstairs, retreat to your private primary suite, complete with a spacious walk-in closet and a luxurious en-suite bathroom featuring dual sinks, quartz countertops, and modern finishes that create a serene, spa-like environment. Two additional bedrooms offer versatility for guests, office space, or a growing household, while the conveniently placed laundry room adds everyday practicality. Situated in the heart of central Tampa, this home provides unbeatable access to everything the city has to offer-vibrant dining, shopping, entertainment, major roadways, top-rated schools, and Tampa's bustling downtown are all just minutes away. Schedule your showing today

2410 E 20th Avenue | MLS# TB8448595

This single family home located at 2410 E 20th Avenue, Tampa, FL 33605 is currently listed for sale with an asking price of $395,000. This property was built in 2026 and has 3 bedrooms and 2 full baths with 1355 sq. ft. E 20th Avenue is located in the MAYS subdivision. Search MAYS real estate on www.realtymarkllc.com today.

Property Features

Property Type: Residential - Single Family
Cooling: Central Air
Heating: Central
Lot Size: 0.05 Acres
Roof Type: Shingle
Stories: 2.0
Taxes: $589
Year Built: 2026

Amenities

Ceiling Fans(s)
Open Floorplan
Sidewalk

Feature Descriptions

Appliances: Dishwasher
Builder: TIMOTHY CONSTRUCTION LLC
Days on Site: 97
Directions: I275 to MLK East, south on 22nd, east on 21st ave, south on n 24th st, left on E 20th ave home on left
Exterior: Block
Flood Zone Code: X
Flooring: Luxury Vinyl
Foundation: Slab
Home Warranty Y/N: No
Listing Terms: Cash, Conventional, FHA, VA Loan
Lot Dimensions: 0.05
Model: 2410
Ownership: Fee Simple
Property Attached Y/N: No
Property Sub-Type: Single Family Residence
Sewer: Public Sewer
Showing Instructions: Appointment Only, ShowingTime
Special Sale Provisions: None
Utilities: Cable Connected, Electricity Connected, Public, Sewer Connected, Water Connected
Water: Public
Water Access Y/N: No
Zoning: RS-50

Room Sizes

Kitchen: 13x11
Primary Bedroom: 13x10
Living Room: 14x17

Listed By / Shown By

Listed By

Agency Name: MUSGRAVE GROUP LLC
Agency Contact: 727-667-1879

Shown By

Agency Title: RealtyMark
Agency Phone: 888-260-0040

IDX logo

Estimate Your Payment

Estimated Payment

$ 1,043.39 per month $879.10 Principal & Interest $49.08 Property Tax $115.21 Homeowner's Insurance

Change Payment Information

%
years/fixed
yearly
yearly (est.)
(Payments are an estimate and may vary by lender)
IDX logo

All commissions are negotiable Disclaimer: All information deemed reliable but not guaranteed. All properties are subject to prior sale, change or withdrawal. Neither listing broker(s) or information provider(s) shall be responsible for any typographical errors, misinformation, misprints and shall be held totally harmless. Listing(s) information is provided for consumers personal, non-commercial use and may not be used for any purpose other than to identify prospective properties consumers may be interested in purchasing. Information on this site was last updated 03/02/2026. The listing information on this page last changed on 03/02/2026. The data relating to real estate for sale on this website comes in part from the Internet Data Exchange program of Delta Media Group MLS (last updated Mon 03/02/2026 3:45:58 PM EST) or Stellar MLS (last updated Mon 03/02/2026 3:31:23 PM EST) or GSMLS (last updated Mon 03/02/2026 3:24:14 PM EST) or Emerald Coast MLS (last updated Mon 03/02/2026 3:36:00 PM EST) or Central Panhandle Association of Realtors (last updated Mon 03/02/2026 3:37:46 PM EST) or Beaches MLS (last updated Mon 03/02/2026 3:36:53 PM EST) or Naples MLS (last updated Mon 03/02/2026 3:40:54 PM EST) or Bright MLS (last updated Mon 03/02/2026 3:38:41 PM EST) or OneKey MLS (last updated Mon 03/02/2026 3:36:59 PM EST). Real estate listings held by brokerage firms other than RealtyMark may be marked with the Internet Data Exchange logo and detailed information about those properties will include the name of the listing broker(s) when required by the MLS. All rights reserved.

mls logo
Listing data and photos distributed by MLSGRID
Member Participants (and their affiliated licensees, if applicable) shall indicate on their websites that IDX information is provided exclusively for consumers’ personal non-commercial use, that it may not be used for any purpose other than to identify prospective properties consumers may be interested in purchasing, that the data is deemed reliable but is not guaranteed by MLS GRID, and that the use of the MLS GRID Data may be subject to an end user license agreement prescribed by the Member Participant’s applicable MLS if any and as amended from time to time. MLS GRID may, at its discretion, require use of other disclaimers as necessary to protect Member Participant, and/or their MLS from liability.
Based on information submitted to the MLS GRID. All data is obtained from various sources and may not have been verified by broker or MLS GRID. Supplied Open House Information is subject to change without notice. All information should be independently reviewed and verified for accuracy. Properties may or may not be listed by the office/agent presenting the information.



Privacy Policy / DMCA Notice / ADA Accessibility

Login to My Homefinder

Pixel